Plans for a new sidetrack production well at the Whisby oilfield are being considered by Lincolnshire planners.

The operator of the field, BritNRG, has estimated that the well, if approved, could extract 88 barrels of oil a day, or about 12 tonnes.
The company has estimated the well could extract up to 118,000 barrels. Production is expected to decline to about five barrels a day in 2032, and then stop.
A planning application, submitted by the company for drilling, testing and production, is due to be decided by planning officers under delegated powers. The council has ruled that the application does not need an environmental impact assessment.
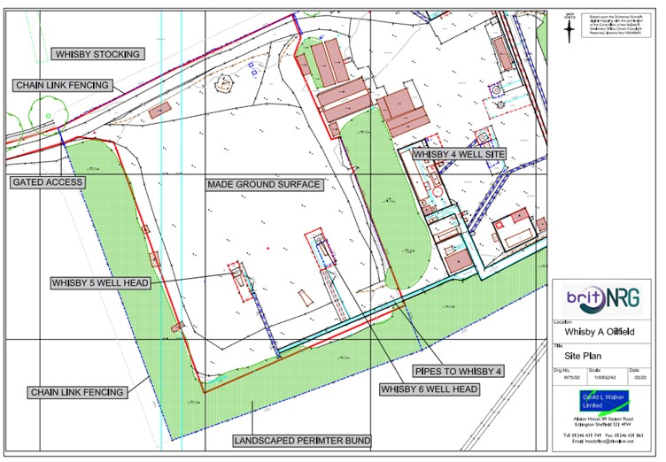
The proposed well, to be called Whisby-7, would be on the Whisby A site, near the hamlet of Eagle Moor. It would be drilled from an existing well, Whisby-5, which has been suspended but was due to be restored to production.
It would extract oil from the southern part of the field, which has currently not been drained.
If approved, the well would be drilled in the final quarter of 2022 and come into production in the second quarter of 2023, BritNRG has said.
The target location would be the basal Permian sandstone at a depth of about 970m.
The Whisby oilfield was discovered in 1985 and developed in the 1980s. Production began in 1990 and a total of six wells in the field have produced 860,000 barrels of oil, the company said.
In 2021, the field’s production, currently from two wells, was 31,880 barrels, or 0.63% of UK annual onshore oil production. It ranked ninth in the UK onshore producing oilfields in May 2022.

Application details
According to the application, drilling would use a proposed trailer rig, measuring 36m high. The work would take 26-40 days.
Additional equipment added to the site would include generator sets, fuel tanks, compressor units, water tanks, mud settling tanks, ancillary plant and maintenance stores, casing and pipe rack storage, disposal facility for waste material, site office, welfare facilities, drilling and mud log cabins and security cabin.
If hydrocarbons were present, an extended well test would follow, lasting up to three months, to establish flow and recovery rates.
Any fluids from the well would be piped, in an existing pipeline, to the Whisby-4 site.

BritNRG said the application will not extend the Whisby-A site. There would be no increases in the production of waste, scope for pollution, impacts on human health or creation of nuisance, the company said.
It said there was “positive policy support for the proposed development and nothing has been identified in potential impact terms that would warrant a refusal of planning consent”.
There is ancient woodland immediately to the north of the site. The company said the current site is “already fully established relative to this asset and thus there is no scope for direct impact”.
But in a comment on the application, the Forestry Commission said ancient woodland was “an irreplaceable habitat”. Under planning guidance, it said permission should be refused for development resulting in loss or deterioration.
The proposal has attracted one objection from a member of the public and one from Exolum Pipeline System, which has nearby apparatus. BritNRG’s agent has said the well would be drilled below Exolum’s asset and would not affect it. Exolum later withdrew its objection.
There were no objections from Environment Agency, Lincolnshire Highways, Lincolnshire Police, Natural England or North Kesteven District Council.
Link
Planning application for Whisby sidetrack PL/0078/22
Updated 6/10/22 to include removal of Exolum objection.