Council unanimously opposes West Newton fracking
East Yorkshire this afternoon unanimously opposed fracking in the county.
East Yorkshire this afternoon unanimously opposed fracking in the county.
A new share placing could raise £1.9m for the West Newton oil and gas project in East Yorkshire, the leading partner has announced.
DrillOrDrop reports on the latest news on UK planning and permitting applications for onshore oil and gas.
Catch up with recent UK onshore oil and gas applications and decisions with DrillOrDrop’s update.
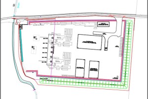
Rathlin Energy has given more details of revised extension and production plans at its West Newton-A oil and gas site in East Yorkshire.
Opponents and supporters of plans for a major expansion of an oil site in East Yorkshire put their cases to councillors this afternoon.
Proposals by Rathlin Energy for 20 years of oil production and six new wells at its West Newton-A site in East Yorkshire have been supported by council officials.
A new report published today shows that the UK has increased its oil and gas production since declaring a climate emergency in 2019.
Three East Yorkshire councillors have asked an oil company to establish a community fund if its expansion plans are successful.
Detailed plans for one of the UK’s largest onshore oil production schemes in recent years have been published.