
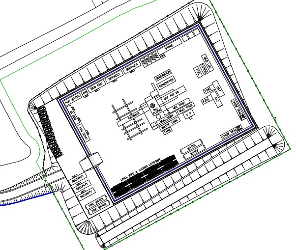
Plan for UKOG 234’s Loxley wellsite near Dunsfold, Surrey. Source: UKOG 234 environmental permit application
Residents near a proposed oil and gas exploration site in Surrey are calling for an extension to the public consultation period on the scheme.
The Environment Agency (EA) has allowed people 28 days to comment on the application for environmental permits for the site near the village of Dunsfold. Link to consultation
But a local community group, Protect Dunsfold, said today the consultation had not been widely advertised.
The consultation period coincides with the general election and run-up to Christmas.
This was “unacceptable for a matter of such public importance”, the group said.
A spokesperson told DrillOrDrop:
“This application is of high public interest and needs to be subjected to close and detailed scrutiny. 28 days is simply insufficient time.”
The company behind the scheme, UKOG 234, wants to drill a vertical and sidetrack well to explore for gas in the Portland sandstone and oil in the deeper Kimmeridge clay formation. It also wants to carry out initial and extended tests on the flow of hydrocarbons in the well.

Well plan for UKOG 234’s Loxley wellsite near Dunsfold, Surrey. Source: UKOG 234 environmental permit application
UKOG 234 has applied for planning permission to Surrey County Council and a decision is currently expected in January 2020.
But the company also needs to secure environmental permits for the proposed operations.
The permit application comprises 26 documents, including a 218-page environmental risk assessment, 195-page gas management plan and a 261-page site condition report. Some appendices are repeated in more than one document.
The EA can declare an application to have “high public interest” at any time and extend the consultation period.
Protect Dunsfold has written to general election candidates, local councillors, businesses and interest groups urging them to ask the EA to extend the consultation period until after the planning decision.
The current deadline for comments to the consultation is 19 December 2019. Comments can be made
- Online
- By post to Environment Agency Permitting and Support Centre, Regulated Industry Team, Quadrant 2, 99 Parkway Avenue, Sheffield S9 4WF
- By email to PSCpublicresponse@environment-agency.gov.uk
Details
UKOG 234 has applied to the EA for permits to produce mining waste, incinerate more than 10 tonnes of gas a day in a flare and store or handle up to 500 tonnes of crude oil. The company is also applying for a radioactive substances activity permit and to use medium combustion plant and specified generators.
The proposed site, called the Loxley well site, is 350m from the nearest home. There are 50 properties and a caravan park within 2km. The land immediately to the north of the site is part of the Surrey Hills Area of Outstanding Natural Beauty.
The application outlines how the site will be constructed and the well drilled and tested. It also gives details of chemicals to be used and waste likely to be produced.

Hydrogeological model for UKOG 234’s Loxley wellsite near Dunsfold, Surrey. Source: UKOG 234 environmental permit application
Well treatment The sole treatment proposed in the application for Dunsfold is an acid wash. This is the circulation of a 5-15% solution of acid through the well to clean the borehole after drilling. Parts of the application refer to hydrochloric acid, while others say the operation will use acetic acid. UKOG 234 said acid wash was considered “de- minimis” or low risk and therefore does not need a groundwater permit.
The planning application for the Dunsfold scheme said the sidetrack well would: “allow alternate completion methodology, new completion fluids and the possible use of small-bore radial drilling to be deployed in the search for higher sustainable recovery rates“. There was, however, no reference to these proposals in the environmental permit application.
Flaring Gas produced during the initial seven-day well test and the 90-day extended well test, would be burned in a 12.2m shrouded ground flare, the application said. UKOG 234 said this was regarded as best available technology (BAT). Use of the gas to produce electricity could not be considered BAT. Two flares would dispose of up to 4.4 million standard cubic feet per day (MMscfd), the application estimated.
There may be a “short period of time” during the initial flow test when a flame may be “slightly visible above the shroud”, the application said.
Nitrogen lift and cold venting UKOG proposes to pump nitrogen into the well to lift formation fluids from the wellbore during the well tests. At times, the volume of nitrogen, an inert gas, may be high enough to prevent the flare from igniting. Gases from the well, including climate-damaging methane, would be then be released, or cold vented. The application said:
“cold venting of small volumes of natural gas is considered BAT by UKOG”.
Greenhouse gases The environment risk assessment estimated that the Dunsfold development would result in 28,778 tonnes of carbon dioxide equivalent. This was described as
“largely insignificant in relation to the UK’s current inventory and future budgets”.

Work plan for UKOG 234’s Loxley wellsite near Dunsfold, Surrey. Source: UKOG 234 environmental permit application
Other pollutants The application said the main pollutants would be nitrogen oxides, carbon monoxide, volatile organic compounds, sulphur dioxide and particulates. The main sources would be the flare, and diesel fuel used in stationary engines and vehicles. The risk assessment concluded that pollutant releases would “in practice pose no substantial threat to the continued attainment of ambient air directive limits at the nearest locations of human exposure”. The risk of dust was considered “negligible”.
Hydrogen sulphide There was no assessment in the application of the risk of sour gas, or hydrogen sulphide (H2S). Local people have raised concerns about the reported presence of H2S in gas discovered at Godley Bridge nearby in the 1980s. This was measured at 5-30ppm. A spokesperson for Protect Dunsfold said today:
“This is the supposed ‘gas discovery’ that UKOG claims to justify their speculative exploration at Dunsfold in the absence of any other new information supporting their proposal.”
Odour The application acknowledged that smells could result from site activities including storage of wellbore fluids, incineration of gas and purging and cleaning of tanks and pipework. An odour management plan said:
“It is envisaged that the local community will not be familiar with some of the potential odours from the exploratory operations conducted at the Loxley Well Site and therefore any odours emitted from the Well Site will be classed as offensive.”
But it said the impact on local people was described as “minimal” because the operations were temporary. The risk of odour was rated “not significant”.
Chemicals All the chemicals proposed for use in the inventory accompanying the application had been approved at the Horse Hill well site near Gatwick Airport.
Traffic Increased road traffic generated by the Loxley well site would have a “neutral impact”, the application said.
Water The risk of contamination of groundwater was assessed as low, very low or none. The risk of flooding was said to be very low.
Categories: Regulation
Is the company financially secure?
not by any normal standard -,this is not BP but an AIM Penny share desperately trying to be taken seriously.
There are two directors and a parent company which has issued more shares than apple corporation each worth about £0.01p
They fund their “exploration activities” by issuing more shares – 7 billion to date.
No reserves so if they have an accident you will not see them for dust.
BP or any “proper oil company” is not interested.
But wait for Martin Collyer’s perspective he clearly is clued up on the alternative truth.
Reality Factcheck:
You mean a company that has been developing for a few years and has yet to make an annual profit??
The alternative truth-of Tesla! Except we are talking about investors chucking in $ Billions there rather than a few £ Millions.
No, BP not interested. Too busy trying to play expensive catch up in USA buying into shale fields that the “proper oil company” was not keen on when the price was cheap! “Proper oil companies” are not any more fool proof than UKOG.
However, you may enjoy the BP production coming into Fawley Refinery from the USA and then dip in your pockets to make up the lost tax revenues to fund public services in the UK. Somehow I doubt there will be too many activists shaking their buckets for that good cause.
Always happy to oblige.
Conventional production well!, what is the harm and Paula C what’s it to you if or if not the company is secure?, secure from what!
Protectdunsfold: Even BP started from somewhere, switch on!
Still working for Cuadrilla Eli-Goth? How are they getting on these days?
They tried to claim the Balcombe was conventional too didn’t they? While they were planning to frack.
Nothing conventional about it see this quite from the planning application:
““Flow tests and pressure data from the Broadford Bridge and Horse Hill Wells Sites have been sub-commercial which is why the ‘potential means of recovery’ needs to be tested at Loxley in compliance with SMP Policy MC12. This is precisely why the sidetrack well (L-1z) forms part of the development proposal. L-1z will allow alternate completion methodology, new completion fluids and the possible use of small-bore radial drilling to be deployed in the search for higher sustainable recovery rates. Knowledge gained at Loxley would be used elsewhere within the PEDL-234 licence area to benefit hydrocarbon recovery.”
That is not conventional it is experimentation and prototyping – there is no mention of “New completion fluids” in the environmental permit – so not just “vinegar” then are going full balsamic I wonder?
Misunderstood protectdunsford: if you want to protect maybe appreciate the employment potential for dunsford!! But this hasn’t crossed your mind!
This is all “conventional”. There are many types of completion fluid; the Operator needs to determine the best fluid to minimise reservoir damage and maximise flow rate and recovery.
https://www.glossary.oilfield.slb.com/Terms/c/completion_fluid.aspx
Radial drilling has been used in “conventional” oil and gas wells for many years to enhance productivity in tight reservoirs or improve productivity in depleted wells:
https://search.spe.org/i2kweb/SPE/tag/Radial%20Drilling
They are not developing new techniques, just trying to use the best available technology to establish commerciality. Of course this may prove difficult. Last roll of the dice and all that.
Environmental permits cover a range of drilling fluid and completion additives. If they are proposing something that is not covered in the existing permit they will have to update the permit.
Link to consultation documents
https://consult.environment-agency.gov.uk/psc/gu8-4bw-ukog-234-ltd/
The directors are doing very nicely too, thanks to the mug punters who don’t have a clue what’s going on here.
I expect a few more AIM hopefuls will see their fantasy of easy money disappear down another one of UKOG’s black holes.
I find it incredible that anyone would even think this is a good idea let alone consider it a viable idea. Apart from being in an area’s of outstanding beauty and the damage to the wild life, the light pollution, the noise pollution, the infer structure does not exist to be able to cope with the extra traffic and size of the lorry’s. These are only a few reasons it’s not a good idea that seem to be over looked!!