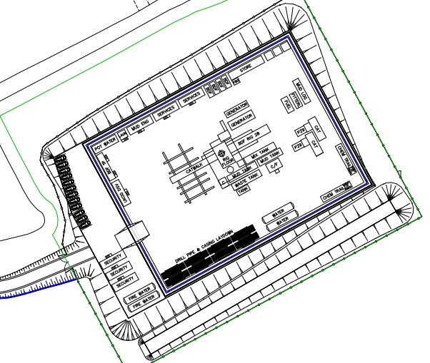
Published November 25, 2019 at 602 × 509 in Villagers seek more time to comment on Surrey drilling plans Plan for UKOG 234’s Loxley wellsite near Dunsfold, Surrey. Source: UKOG 234 environmental permit application ‹ Return to post Add a comment Cancel reply Δ