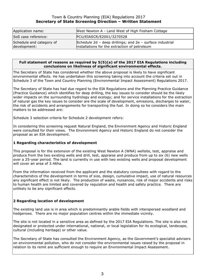
Plans by Rathlin Energy for long-term oil production at a site in East Yorkshire do not need a detailed environmental study, a government minister has ruled.

Screening direction from the local government secretary 
The local government secretary, Robert Jenrick, announced today that the company’s proposals for 25-years of oil extraction and six new wells at the West Newton-A well site were “not likely to have significant effects on the environment”.
In a screening direction, he ruled that the company did not need to submit an environmental impact assessment (EIA) as part of a future planning application. The ruling supports the earlier decision of East Riding of Yorkshire Council.
The minister’s screening direction had been requested by Jacob Birch, a Conservative councillor on East Riding of Yorkshire Council, and nearly 30 other local representatives.
They had been particularly concerned about the effect of heavy traffic generated by the proposal on local villages and rural roads.
This evening, Cllr Birch said:
“This decision is extremely disappointing for residents and myself who hoped the Secretary of State would see the impacts this will have and direct this to be an EIA development.”
The minister said he noted that the proposal was likely to generate between 20 and 25 additional daily trips to the site by heavy goods vehicles. But he said:
“The Secretary of State considers that this issue can be assessed as part and parcel of the planning application process and if needs be mitigation measures introduced following the assessment, without the need for an Environmental Impact Assessment.
“In terms of the magnitude, special extent, nature, transboundary, intensity, complexity, cumulative impact, and taking account of all information available, the Secretary of State concludes that the impact is unlikely to be significant”.
The minister also noted conclusions by Natural England that the proposal could have “potentially significant adverse impacts” on the nearby Lambwath Meadows site of special scientific interest. But he said an air quality assessment would be part of the normal planning process.
- Rathlin Energy said last week it had scaled back the planned number of daily lorry movements to the site to 10 but it would still include the 20-25 number in its planning application.
Categories: Regulation, slider
Great news. Better to produce what we need in this country until it can be phased out.
Here we go again, no recognition of the fact that the planning policy regarding fossil fuel projects is completely inadequate and incompatible with climate change statute, aims and commitments. Planning policy urgently needs updating.
And the old baseless argument that extracting our own fossil fuels is somehow greener than importing is nonsense. An argument propagated by the industry and some deniers. Unless there is a legal agreement that other, existing oil producers will cut back the equivalent twenty five years of their oil supplies, which of course they won’t, the net result is more fossil fuels being burned. We already have more fossil fuels than we can burn. These same old arguments were made about the new coal mine application in Cumbria and were blown out of the water, by experts, stating shipping emissions pale into insignificance when compared to production emissions and twenty five years of burning a new fossil fuel resource. Plus the U.K. steel industry stated they are investing and moving to greener ways to produce steel.
RJ’s decisions have been mired in controversy both in terms of propriety and soundness and it looks like this is another shortsighted decision.
https://www.theguardian.com/environment/2021/may/27/dig-coal-to-save-the-climate-the-folly-of-cumbrias-plans-for-a-new-coalmine
When I read comments regarding climate change I think there`s another tree hugging idiot !!. This planet`s climate has been in a state of flux ever since it came into existence and will continue to change until it is destroyed by the sun going supernova. 58 million years ago there were NO icecaps, 4,500 years ago large parts of the Sahara desert were under water and will be awash again in 15,000 years due to the Milankovitch cycles . Both wind turbines ,solar panels and even tidal barrages are unreliable sources of energy, Unless the generating source is able to produce name plate capacity 24/7/52 it is not worth having. In the summer months our “green” wind turbines do produce an excess of energy which we sell to the Continent, but in winter we are HEAVILY reliant on France, a country which is proving to be a vindictive enemy, to supply our energy needs from their NUCLEAR power plants. Did you know that your so called green wind turbines rely on an element called NEODYMIUM in order to function?. It is mined in China in sweat shop conditions reminiscent to the slave trade ; the waste material is highly toxic causing cancer, respiratory disorders etc. This discharge has laid waste large tracts of agricultural land which can NEVER be used again and robbed the local farmers of their livelihood, and who were then thrown off their lands. The turbines also kill a large number of birds and bats each year which feed on insects which in turn attack our crops. putting our own food production at risk. Does that sound like a green solution to you ?. It certainly does not to me!!!. Neodymium is also used in electric cars – another “green” fallacy, while solar panels cannot be recycled just thrown into landfill sites. The problem in NOT how the power is generated , but for how many. Put simply there are too many people on this planet. With regard to UK steel , I worked in a steelworks all my life and yes it is very energy dependent, these so called “green” ways of producing steel will just put our plants out of business. The steel production will be moved overseas costing our workers` their jobs. Green energy is a fallacy which politicians use to con people into voting for them because they are “concerned” about the planet , while green taxes are just another method of parting the working man from his/her hard earned cash.
Of course any Tory Minister is mired in controversy-if you read the Guardian!
The answer is pretty straight forward-spread your net a bit wider. But, not to 1720, otherwise you will find HMG were campaigning to leave the EU and told lies! Correct on one, but wrong on the other.
Another shortsighted decision?? How? It has been declared that UK will continue to use fossil fuel up to and beyond 2050, even whilst it moves to net zero. Correct. UK currently imports a lot of oil, it is CALCULATED (yes, maths!) by the UK Government that UK produced oil is superior in meeting it’s net zero target than imported oil. Correct. So, no, not shortsighted at all, but pretty straight forward and progressive. The only short sighted bit are comments made against progressive moves towards improving the environment. For anyone wavering about their own personal choices, why would they bother? Nothing that is sensible will be acceptable, so why bother with anything? There seems more intent on maintaining a cause, whatever that takes, than maintaining or improving the environment when one scratches below the anti veneer. And, yes, the dogma is working. I come across many who have been totally turned off from what would be small but sensible changes they could make themselves, when they see, for example, those who travel “significant distances” to take part in something that they have little idea about.
In terms of the Cumbia mine, then the key is whether the investment will be made to convert UK steel away from coal. If it isn’t, then the theory will not be put into action, and the status quo will continue. Looking at investment into UK steel currently, I would not be convinced that any significant investment will be made other than, if lucky, to keep some steel manufacture going.
Hi Martin
I haven’t seen details of any HMG calculation suggesting onshore oil is better than imported when it comes to reaching net zero – do you have a link to further information?
I’m sure readers would be interested in any calculations regarding offshore oil as well – again, do you have a link?
Thanks Paul
Hi Paul.
Why don’t you ask antis for confirmation of information? This site is littered with false information from posters, including Ruth about the mythical “missed” (which I did politely correct at least 3 times and yet the false information continued to be printed, and one can only suspect that is to seed a narrative that the operator is not as competent as they seem to be, and is the platform some would like), including the price of Brent oil and many more. If I point out the many more you moderate me for some reason. Other than the Victorian approach of skirts for table legs, I am mystified as to why that should be necessary.
The information I refer to was given to a Select Committee when there was a question regarding why licenses were still being offered for UK exploration, and so was the inclusion of oil and gas in the UK energy mix until at least 2050. If you wish to join the few, or support them, who try and hide transport emissions for starters, then that is your choice, but any calculation shows you can not just knock something off which is real without producing a one sided equation. And the Select Committee could obviously not fall back on ignorance of what “transfer” means. The information regarding Brent crude was easily available, including the daily commodity info. in the Times, the information regarding noisy French wind turbines being turned off was detailed within the Times. Both protected by a pay wall, so perhaps no point in referencing to those who just rely upon the Internet.
With reference to offshore oil, it obviously depends where the offshore is, but there are few current sources that would be better in transport emissions than offshore UK, and none that would be possible for the buyer ie. UK, to have any control over standards of production operated-which then raises the “link” to chlorinated chicken concerns for UK consumers. And, even Channel 4 features the possibility of UK lithium sources being better for the environment than imported, and quoted almost identical reasons. So, then we could go through the nonsense that somehow oil and gas are different in such respects, but it would still end up nonsense.
For the record, Paul, there seems to be interest in allowing false information to feature unchallenged from antis but correct inconvenient information supplied by those who do their research to be questioned. It is what it is, and maybe that is necessary to keep some excited, but I thought the point about moderation was to maintain something approaching a level playing field?
And, to prevent the opt out for some to suggest I am anti other countries supplying goods, no, I am not. But, I do believe there are good environmental reasons for local production for local consumption, where that is possible.
Hi Martin
The problem with quoting information without supplying a source is that subtleties can be lost, and without knowing where the information came from, it is difficult to assess how credible it is.
In your original comment, you say
but don’t mention whether the calculations cover onshore oil, or only offshore. This is significant when the piece you are commenting on concerns claims for an onshore well.
Also, not all calculations presented to parliamentary committees go unchallenged, for example Matt Hancock’s claim that 1.6% of Covid deaths in care homes were linked to hospital discharges. This claim has been widely criticised – for example here: https://www.carehome.co.uk/news/article.cfm/id/1651227/Care-home-leader-highlights-Hancock
Quoting a source helps readers do their own research, reading the source material to see the full description of what was said including any subtleties (for example Mr Hancock references his figure as “data shown to me”) and searching for any reaction or criticism of the material.
None of us want to encourage or spread fake news. One highly effective way of doing this is to keep repeating unsourced “facts” which have some basis in truth but don’t tell the whole story. Therefore it is important to source information, particularly if it hasn’t appeared previously in DrillOrDrop.
Regarding the “missed target formation”, this is a quote from a statement on the drilling issued by the local council – https://drillordrop.com/2020/12/03/officials-give-rathlin-energy-extra-time-for-drilling-at-west-newton/ – as has been pointed out previously.
I think the less I say about that, the better Paul-except the “missed target formation” information was not from the operator, who did actually supply sourced facts, which gave details about encountering the formation, and they were the ones who generated the facts and then reported them! If your logic was followed DoD would have informed the reader that the information was presented from a third party and contradicted the source of the information, otherwise your posting regarding the “whole story” is not accurate. But, then, for DoD to make a comment about the “whole story” is an oxymoron, which is why I post when I have some information that I feel is relevant to help towards the whole picture.
Of course, I could always find some obscure “source” to indicate a pigeon was not a herbivore, and then it would not be!?? Nope, it would still be a herbivore, which is why most large arable farms conduct their annual pigeon shoot-including those around the Wold.
Your reference to Hancock could also be improved. That data was put in the public domain some while ago, by a member of Sage, from an official investigation of the subject, during a public information presentation. We will see the full picture when the Enquiry happens, but your point is interesting in that the media were present at that presentation yet totally ignored it because they were more intent on focusing on Hancock rather than the data! But, if Care Homes can not quarantine patients effectively, that is another matter that needs resolving because there are many more virus issues, and bacterial issues, that could create problems in such a situation. I expect that we will see many Care Homes could and did quarantine well and coped well, and a smaller number could and did not-and few who have looked at selecting a Care Home for a loved one will find that surprising.
And, you have yet to show ANY instance where my facts are unsourced, although you have tried now on at least three occasions, and others have done so on many more occasions, but equally unsuccessful, and Brent was and is still above $70/barrel. I accept that may not be the whole story but the whole story is built up of individual facts-and that is one. And, it is a fact that, as I expected, you failed to even address transport emissions, which in respect of the subject is the fact that is indisputable, and can only be ignored if the whole story is not considered. But, for those who want a “source” they can check the emissions of maritime transport compared to other sources of emissions if they do a bit of research. I think they will find it is a total larger than that of Germany, but my last look at that subject was a short while ago. Not sure anyone in UK will have much joy adjusting what Germany does, but they do have some power to influence what maritime emissions are produced on their behalf.
PS.
Just checked my data regarding maritime transport emissions and German emissions, and yes, my data is correct, and it took me about two minutes to check that. It really is not difficult to look at the whole picture, unless you follow the Nelson approach and end up with “I see no ships”!.
Paul, I think you missed this comment from Kat, as you didn’t ask her to provide the evidence.
‘Unless there is a legal agreement that other, existing oil producers will cut back the equivalent twenty five years of their oil supplies, which of course they won’t, the net result is more fossil fuels being burned.’
And, Terri, whatever the source the statement remains incorrect. Producers do cut back production when demand drops, it is seen all the time within OPEC statements, and why Brent oil is over $70/barrel now. If KatT is suggesting demand elsewhere will increase that is another matter and requires some extensive travel to confront. No amount of protest in UK against local production will change that one iota, with the best that can be suggested is that the UK will teach others how to behave! If that is true, then it can be argued that UK local production applying high standards is a strong lesson.
But, seriously, does anyone believe that consumption is driven by supply in respect of oil? Well, KatT seems to, but the reality for the UK is that it can obtain oil to meet it’s consumption. How it then does that is the area that some want to ignore, others would like to see improved. You do not drive down consumption by curtailing local production-you just end up with a load of BMWs, Mercs., etc. etc. upon UK roads, or French Beans being flown in from Kenya. Of course, you can change the nature of society and do away with that issue-but, you then end up with N. Korea. So, out of all that whole picture, the local production with reduced transport emissions, and operating to higher standards, and contributing to UK taxation revenue etc. etc. looks pretty attractive, and only fails to do so if and when you cut away big chunks of that whole picture. Ignoring the fact that oil production is reduced when demand drops is just one. For those really interested in reality there are many links and publications concerning Cartels, where the oil market features as a prime and probably largest example. What they do, how, and why, are not unknown.
Like so many of this government’s so-called policies, this decision, despite statements to the contrary, ignores the big picture, arguing in effect that the normal planning safeguards are adequate to protect life on the planet. Were this true, it might be considered that, given the extent of global heating, planning authorities have been remiss in their application of these safeguards. There is little to indicate that the normal channels are up to the job.
I believe Terri to be right in a preference for the home-grown and would suggest that in principle Kat might agree with him/her. Kat however might not agree that this product should be grown at all. She might think, although I have no mandate to speak for her, that importing the product until such time as we can rapidly replace it, using the millions which would otherwise be squandered on domestic production, is the (temporary) answer.
Sorry, 1720, only someone interested in the wealth of those countries currently exporting to the UK, and would not want that transferred to the UK, would suggest that is any sort of answer. But, the sort of answer that would be totally driven by a vested interest.
The rest of us can look at where currently imported oil comes from, the lax standards in many such countries, and the emissions to get it to the UK and can clearly see that UK production is a better situation. Besides which, UK on shore oil is keeping many antis excited to travel many miles, and what would they do without?
Unfortunately, I think there’s a significant chance that a debt driven global economic crisis in the middle of this decade will kill millions of people considerably more rapidly than climate change will. These crises in the past have lead to wars, because that’s what humans do. That’s not good for the environment either.
The best case under these circumstances is a trade war/cyber war instead of a shooting war. Anything that improves a country’s energy security has great value because it reduces the drive to military conflict. Outsourcing hydrocarbon production to other (politically more unsavoury) countries, whilst ignoring geopolitical realities and engaging in virtue signalling nimbyism in wellies in the UK is condemning us to a poorer and much more uncertain/dangerous future without having any measurable impact on global CO2 emissions.
Absolutism about hydrocarbons is closer to religious zealotry than it is rational science, and gets us nowhere any quicker. The focus should be on transition – and the plans for Humberside are the best I’ve seen. Why worry about the possibility of billions being reduced to poverty by climate change in the future when you are advocating the immediate impoverishment of billions by banning hydrocarbons and fostering economic war? It makes no sense at all.
Hysteria is not the way to get people on side. The aims are important, the means need to work and not be counter productive. Stopping Londoners going to work by sitting in the road in flowery wellies just pisses people off and sets back the cause. There needs to be a number of projects like zero carbon Humber being developed in parallel connected by a overarching narrative that is achievable and rational. Science, technology and good governance can then over-deliver incrementally if given the chance and the time.
Please also stop conflating conventional oil and gas exploration and exploitation with ‘fracking’. It is very silly, and when people realise that they are being hyped up by untruths, no matter how worthy the cause, the cause is harmed.
I think you are barking up the wrong tree, Lageraemia, and we are unlikely to agree that that which you dismiss as “virtue signalling nimbyism” is in fact working. Nor do I feel I am guilty of “hysteria” or that my “absolutism about hydrocarbons” is any more deleterious than your own. I cannot agree that any putative “conflation” of ‘fracking’ with conventional exploration and exploitation is any more “silly” than to brand countries other than the UK as potentially “unsavoury”. The “religious zealotry” you discern and decry is more of a response to those deniers whose chameleon presence and arguments should, I feel, be exposed than an ill-considered gut reaction devoid of the endorsement of rational science. There is so much in your posting that I agree with and so much that I feel is wrong-headed if well-intentioned that it would take more time than I have available to bore our readers with just now, but I do take exception to much of your language. At a time when consensus is an imperative and the transition underway I hope you will feel able to overcome your dislike of flowery wellies and accept that the aim is the same even if the methods differ. Those opposed to the development of new sources of hydrocarbons do not believe they are fostering economic war, some feeling that this is much more likely to be brought about by our reluctance to accept the inevitability of migration.
There are plenty of unsavoury countries in the world, sadly. Many produce oil and gas – some of which we currently use and which could be replaced by using our own domestic production. Not only would we be supporting the British economy, but we wouldn’t be helping to prop up these distasteful authoritarian regimes.
So many ‘anti oil & gas’ protestors seem to have no understanding of what is actually happening in the world. Ever heard of the ‘Belt and Road Initiative’? Who is it who is building coal fired power stations as quick as they possibly can? Why aren’t you protesting outside the Chinese embassy? Haven’t you heard members of the Chinese governing body recently stating that they want to dominate and run the world? Where would that leave your green agenda?
We’ve gone past the stage where everyone can put rubbish in the right bins to save the planet. We face difficult times ahead, and if producing domestic oil and gas adds a little bit to strengthen security of energy supply leading into it for British people, including my children, I’m all for it. I think it’s time these fantasists woke up, because the world has changed a lot in the last 2 years for the worse. Arguing about what type of energy we use will look quite pathetic in a couple of years time in my opinion, when there are missiles flying left right and centre.
Perhaps, Terri! None of us can be sure that our path is the right one but we can and should look for a little more understanding, not to mention historical perspective and examination of conscience, when we call other countries “unsavoury” and “distasteful”. We should also display a little more humility when we accuse others of ignorance as to “what is actually happening in the world”. You may be surprised! Furthermore, what seems to you pathetic given your own doomsday scenario seems to others to be precisely that which might just prevent your alarmist scenario, by demonstrating solidarity, understanding and the readiness to work with others to solve the ever-increasing problems which characterise a world which has indeed changed a lot over the last few years. A little less confrontation and antagonism, and a little more solidarity, collaboration and integrity might be a pipe dream, but I’m hopeful, and we can start at home. If we cannot achieve this, what’s the point?
“A little less confrontation and antagonism”!!!
You do lighten up my day, 1720.
From what has actually taken place regarding transition, it is/are the antis who are guilty of that. You have achieved just that, so yes, what is the point? Lageraemia makes valid points and your attempt to duck out of the way and claim no responsibility fools no one.
You have posted several items on this site that you campaign against things that many others know are beneficial to the environment, that can and should be done at home, yet expect others to accept your something must be done mantra without question, and without defining how the something adds up, yet quote fake maths. to try and show things that do add up, don’t! And, you do so in the middle of the night, on occasion, with the assistance of fossil fuel. I do find such an approach rather humorous, but I do know many others find such self absorbed incoherence to be somewhat annoying, especially when you try and excite others to waste public money on an approach which has already been ruled as incoherent ie. the “transfer” of production to a more local source. There could be many definitions for your approach but I shall not be confrontational, and just point out the obvious-you are part of the problem, not the solution.
We will still need oil for decades to come.
It is much more environmentally friendly to extract it locally.
Thank you, Kat, for the link in your post yesterday. I have just read this: it’s excellent.