Egdon Resources wants to drill for gas at a new site between Bridlington and Scarborough, official documents have shown.

Source: Egdon Resources screening request
The site, near the village of Foxholes, is on a chalk aquifer and near the edge of the proposed Yorkshire Wolds area of outstanding natural beauty (AONB).
It is about 15 miles from another proposed gas exploration site at Burniston, planned by a consortium which also includes Egdon Resources.
Unlike Burniston, where small-scale fracking is planned, the Foxholes proposal has ruled out any form of hydraulic fracturing.
Details of the Foxholes scheme were unveiled when Egdon began the formal planning process by making a request to North Yorkshire Council for a screening opinion.
This asks the council to decide whether a future planning application should include an environmental impact assessment (EIA) and a detailed study, known as an environmental statement.
Egdon, now owned by the US-based Heyco group, has argued that the proposed site would not “result in significant effects on the environment by virtue of its size, nature or location” and would not need an EIA.
It said the site was not designated for its ecological importance and there were no statutory nature sites within 2km. It also said the area was not sensitive nor densely populated, there were not scheduled monuments within 2km and operations were not expected to “result in significant risk of major accidents or disasters”.
At the time of writing, the council has not published its decision on the EIA on the online planning portal (application NY/2025/0017/SCR).

Details
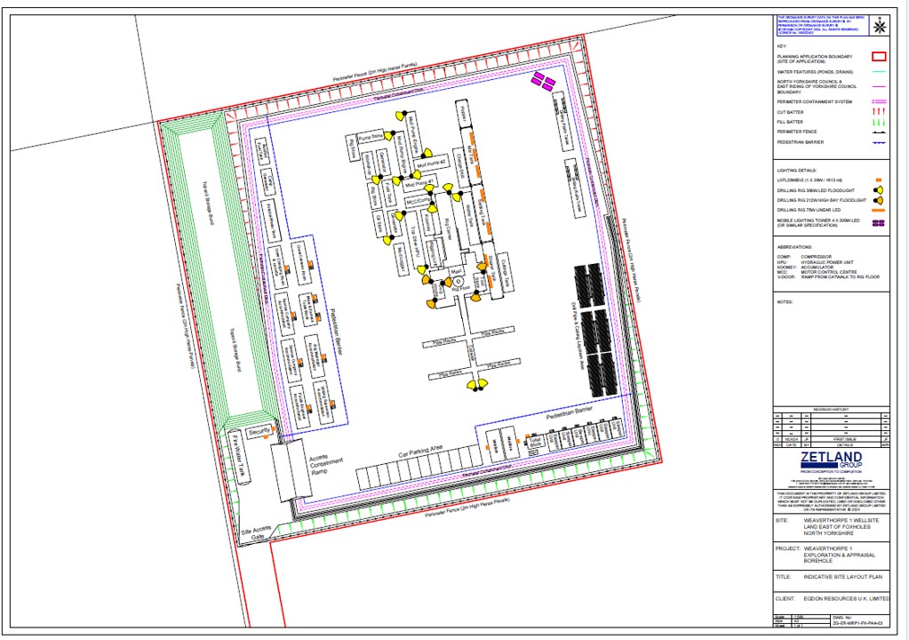
The screening request is the first time details of the Foxholes project have been revealed.
The site is on farmland north of Butt Lane, Foxholes, near Driffield YO25 3HY. It is in North Yorkshire but about 350m from the county boundary with East Yorkshire.
The scheme proposes:
- Three-year planning application for site construction, drilling, testing and restoration
- 1ha exploration site (excluding access track) but if exploration were successful the size would be reduced to 0.2ha while new planning and permitting applications were submitted
- The well would be drilled 24 hours a day to a depth of 1,100m using a rig up to 38m high
- Gas produced during testing would be burned in a flare
- The five phases of the project would require more than 600 heavy goods vehicle (HGV) journeys
- The site would need 12 security and welfare cabins, five 1,000 litre water tanks, a generator and one 3,000 litre fuel tank
The exploration site is in licence area PEDL347, granted in 2016 to Cuadrilla. In December 2023, Egdon acquired 75% of the licence and took over as operator.
If approved, the proposal would explore the Weaverthorpe gas prospect in the Sherwood sandstone reservoir. Egdon has estimated the resource contains 63 million cubic feet (bcf) of gas. The first 250m of the well would go vertically through Cretaceous aged chalk.
The screening request said the site was located on the chalk principal aquifer, capable of supporting large water supplies. The aquifer was described as “highly vulnerable to any potentially polluting activity” and “potentially at risk from polluting activities on or below the land surface”.
Egdon said the site would have an impermeable membrane that would provide “mitigation against the risk of any materials permeating into sub-surface soils or groundwater”. It said no surface water would be discharged from the site area, “so there will be no potential for water run-off to contribute to, or increase the risk of, localized flooding”.
The screening request also gave the following information:
Nearest home: 620m
Distance from Foxholes: 850m
Public rights of way: None within 3km
Distance from proposed boundary of Yorkshire Wolds AONB: 900m
Archaeology: Later prehistoric or Roman trackway either side of Butt Lane and evidence of former settlements
Locally designated wildlife sites: Two woodlands within 2km of the site
Site access: from A64 via B1249 and Butt Lane
Work phases
Phase 1: construction of access and site
Duration: 5 weeks
Working hours: 7am-5.30pm weekdays, 7am-1pm Saturday
HGV movements: 89 total, 6 per day
Operations; Improve existing access into field off Butt Lane, erect 2.4m security fencing and access gates, create working site by levelling site platform area and installing containment ditch and bund system. Waste would be stored in tanks and removed by tanker
Phase 2: Drilling
Duration: conductor installation 2 weeks, drill rig mobilisation 1 week, drilling operation 4 weeks, drill rig demobilisation 1 week
Working hours: Drilling 24 hours, most other operations in this phase 7am-7pm Monday-Saturday
HGV movements: 210 total, 10 two way per day
Equipment: 12 security and welfare cabins, 5×1,000 litre water tanks, 1 generator and 1 3,000l fuel tank, workover rig to install conductor in well cellar, main drilling rig up to 38m
Operation: Drilling to 1,100 true vertical depth, including 400m lateral section
Phase 3: flow testing
Duration: Mobilisation 1 week, flow testing 2 weeks, demobilisation 1 week
Working hours: Testing 24 hours, other operations 7am-7pm Monday-Saturday
HGV movements: 45 total, 4 two way per day
Operations: Egdon said well testing for commercial viability would “not involve any form of hydraulic stimulation, including proppant squeeze”
Phase 4: suspend or restore site
Duration: Site suspension 4 weeks, restoration and decommissioning 6 weeks
Working hours: 7am-5.30pm weekdays, 7am-1pm Saturday
HGV movements: Suspension 136 total,12 two-way per day. Decom and restoration 146 total, 8 two-way per day
DrillOrDrop has closed the comments section on this and future articles. We are doing this because of the risk of liability for copyright infringement in comments. We still want to hear about your reaction to DrillOrDrop articles. You can contact us by clicking here.